ひばりヶ丘を中心に、新座市、西東京市、東久留米市の新築一戸建て・不動産購入・売却 マイタウン西武・マイタウンひばりヶ丘

「お客様ファースト」暮らしに笑顔を 住まいに感動を 株式会社マイタウン西武
TEL:0120-612-622 電話受付時間(水曜以外)9:00〜20:00

東久留米市の物件 - 東久留米市神宝町2丁目 「東久留米」駅の建築条件無し売地 | お好きなハウスメーカーにて建築可 フリープランの分譲住宅としても対応可

敷地ゆったり約35坪以上!お好きなハウスメーカーにて建築可・フリープランの分譲住宅としても対応可

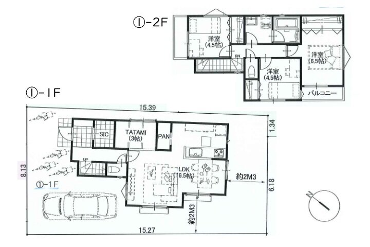
<土地図>

<参考プランを建築した価格>建物価格1,500万円(税込)・総額5,390万円(税込)

※画像をクリック/タップすると大きい画像が開きます。

物件概要

物件名 建築条件無し売地 全3区画
販売価格 各3890万円
3/20新着

所在地 東久留米市神宝町2丁目
交通 西武池袋線「東久留米」駅徒歩18分/西武池袋線「東久留米」駅バス3分「神宝町」停4分
土地面積 118.22㎡~120.00㎡
用途 第2種中高層住居専用地域
建ぺい率 60%
容積率 200%
地目 宅地
現状 更地/相談
設備 都市ガス・公営水道・本下水
土地権利 所有権
取引形態 媒介
備考 敷地ゆったり約35.7坪以上!間取りプランの自由度が高い整形地

お好きなハウスメーカーにて建築可
フリープランの分譲住宅としても対応可

徒歩10分圏内にスーパー・コンビニ・公園・スパジアムジャポンなど


~ライフインフォメーション~
■サンドラッグ・・・約104m
■業務スーパー・・・約151m
■神宝小学校・・・約237m
■神山堂阪公園・・・約308m
■東中学校・・・約565m
■ローソン・・・約613m
■スーパービバホーム・・・約658m
■西友・・・約704m
■スパジアムジャポン・・・約737m

◎オンライン相談・オンライン見学対応しております!
物件番号 3-63943

物件の種類から探す

駅沿線から物件を探す

市区町村で物件を探す

フリーダイヤル