ひばりヶ丘を中心に、新座市、西東京市、東久留米市の新築一戸建て・不動産購入・売却 マイタウン西武・マイタウンひばりヶ丘

「お客様ファースト」暮らしに笑顔を 住まいに感動を 株式会社マイタウン西武
TEL:0120-612-622 電話受付時間(水曜以外)9:00〜20:00

練馬区の物件 - 練馬区富士見台3丁目 「富士見台」駅の新築一戸建て | LDK20帖以上 リビングイン階段 全居室収納完備

敷地34坪以上・省エネ性の高いZEH仕様の住宅・カースペース2台可

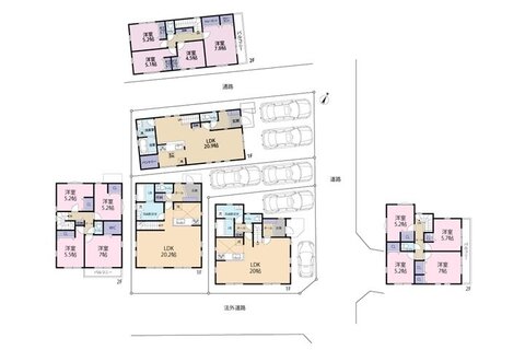
<1号棟 間取り>

<1号棟 リビング>家族との交流が生まれるリビングイン階段を配したLDK、約20帖の広さがあります

<1号棟 キッチン>人気の対面キッチン、キッチン越しに会話を楽しみながら、いつものお料理をもっと楽しく!

<1号棟 洋室>全居室収納完備、どのお部屋も整理整頓が捗り生活空間をより広く利用出来ます

<2号棟 浴室>浴室乾燥機付で、雨の日が続く時にも安心してお洗濯できます

<2号棟 洗面台>白を基調とした洗面室は清潔感がありますね

<区画図>

※画像をクリック/タップすると大きい画像が開きます。

物件概要

物件名 新築一戸建て住宅 全3棟
販売価格 8299万円(税込)~
2/22更新
所在地 練馬区富士見台3丁目
交通 西武池袋線「富士見台」駅 徒歩11分/西武池袋線「練馬高野台」駅 徒歩12分
間取り 4LDK
土地面積 114.55㎡・118.35㎡
用途 第一種低層住居専用地域
建物面積 103.51㎡・104.74㎡
構造 木造2階建
建ぺい率 60%
容積率 100%
地目 宅地
建築年月日 2026年1月
現状 完成済/即時
設備 都市ガス・公営水道・本下水
土地権利 所有権
取引形態 媒介
備考 敷地約34坪以上のゆとりある広さ

来客時にも安心なカースペース2台可

徒歩10分圏内に小学校・コンビニ・公園・郵便局・公民館など


<充実の設備・仕様>
全居室収納付き、LDK約20帖、リビングイン階段、パントリー等

~ライフインフォメーション~
■ぞうさん児童遊園・・・約192m
■セブンイレブン・・・約358m
■富士見台地区区民館・・・約440m
■練馬富士見台四郵便局・・・約506m
■富士見台小学校・・・約700m
■石神井東中学校・・・約840m
■ピーコックストア・・・約879m
■順天堂大学医学部付属練馬病院・・・約1069m

◎オンライン相談・オンライン見学対応しております!
物件番号 3-61807

物件の種類から探す

駅沿線から物件を探す

市区町村で物件を探す

フリーダイヤル