ひばりヶ丘を中心に、新座市、西東京市、東久留米市の新築一戸建て・不動産購入・売却 マイタウン西武・マイタウンひばりヶ丘

「お客様ファースト」暮らしに笑顔を 住まいに感動を 株式会社マイタウン西武
TEL:0120-612-622 電話受付時間(水曜以外)9:00〜20:00

専任媒介の物件 - 東久留米市南沢4丁目「東久留米」駅の中古一戸建て | 食洗器 浴室乾燥機 ペアガラス 間仕切り可能

南道路につき陽当たり良好!R4年築の3LDK

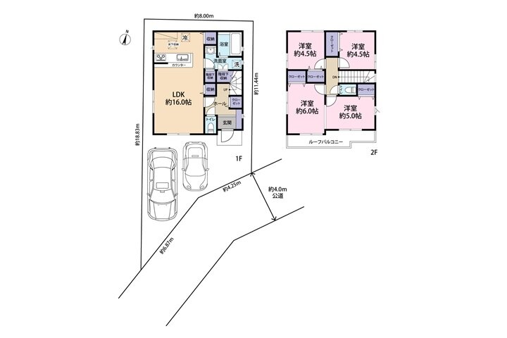
<間取り図>

<新築時室内写真>毎日のお手入れが楽になる全フローリングガラスコーティング!

<新築時室内写真>食事の後片付けがスムーズになる食洗器を備えたキッチン

<新築時室内写真>食事の後片付けがスムーズになる食洗器を備えたキッチン

<新築時室内写真>外の天気を気にすることなく洗濯物を乾かせる乾燥機付きのバスルーム

<新築時室内写真>丸いミラーとボウルがおしゃれな洗面台、引き出しタイプの収納付きです

<新築時室内写真>シューズボックスの上に季節のお花やお気に入りの小物を飾って楽しむのもいいですね

※画像をクリック/タップすると大きい画像が開きます。

物件概要

物件名 中古一戸建て住宅
販売価格 4700万円
3/2新着

所在地 東久留米市南沢4丁目
交通 西武池袋線「東久留米」駅徒歩19分/西武池袋線「ひばりヶ丘」駅バス5分「東京道」停歩5分
間取り 4LDK
土地面積 114.06㎡
用途 第一種低層住居専用地域
建物面積 90.25㎡
構造 木造2階建て
建ぺい率 40%
容積率 80%
地目 宅地
建築年月日 2022年4月
現状 居住中/相談
設備 公営水道・本下水・東京電力・都市ガス
土地権利 所有権
取引形態 専任媒介
備考 南道路につき陽当たり良好!

R4年4月築!たいへんキレイにお使いです

徒歩10分圏内に小中学校・郵便局・公園・図書館・イオンモールなど


<充実な設備・仕様>
全居室二面採光・食洗器・浴室乾燥機・ペアガラス・カードキー・セコム(要別途契約)など

~ライフインフォメーション~
■ひばり保育園・・・約250m
■子どもセンターひばり・・・約300m
■ともだち公園・・・約350m
■第五小学校・・・約400m
■東久留米学園町郵便局・・・約450m
■南中学校・・・約450m
■ひばりが丘図書館・・・約650m
■西友・・・約650m
■イオンモール・・・約650m

◎オンライン相談・オンライン見学対応しております!
物件番号 3-63621

物件の種類から探す

駅沿線から物件を探す

市区町村で物件を探す

フリーダイヤル