ひばりヶ丘を中心に、新座市、西東京市、東久留米市の新築一戸建て・不動産購入・売却 マイタウン西武・マイタウンひばりヶ丘

「お客様ファースト」暮らしに笑顔を 住まいに感動を 株式会社マイタウン西武
TEL:0120-612-622 電話受付時間(水曜以外)9:00〜20:00

専属専任媒介の物件 - 新座市栗原5丁目 「ひばりヶ丘」駅の中古一戸建て| 床暖房 食洗器 浴室乾燥機 浴室TV 

急行停車駅「ひばりヶ丘」駅より徒歩6分・通勤通学に便利な立地

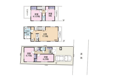
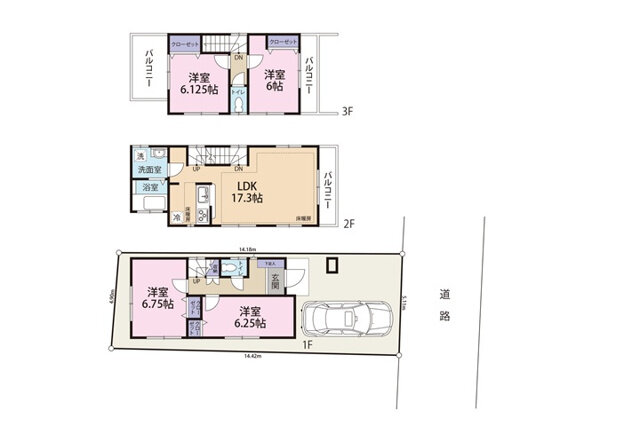
<間取り図>

リビングイン階段によりいつも家族を身近に感じられます。コミュニケーションの取れる空間となりそうです。  

料理をしながらリビングで遊ぶお子様の様子を見守ることができる対面キッチン。来客の際なども会話をしながら、キッチンに立つことができ、リビングからすっきり見えます。

明るさと通風に配慮した2面採光の居室で、一人ひとりのプライベートタイムが充実したものになります。

白を基調とした清潔感あふれるバスルームです  

収納力に優れた三面鏡洗面化粧台は鏡の後ろに整髪剤や歯ブラシなど収納できるのが嬉しいですね。

心地良い陽射しが射し込みやすいバルコニーです。天気がいい日には富士山が見えるロケーションです。

※画像をクリック/タップすると大きい画像が開きます。

物件概要

物件名 中古一戸建て住宅
販売価格 4480万円
2/13新着

所在地 新座市栗原5丁目
交通 西武池袋線「ひばりヶ丘」駅徒歩6分
間取り 4LDK
土地面積 71.58㎡
用途 第一種住居地域
建物面積 101.30㎡
構造 木造3階建て
建ぺい率 60%
容積率 160%
地目 宅地
建築年月日 2011年3月
現状 居住中/相談
設備 公営水道・本下水・東京電力
土地権利 所有権
取引形態 専属専任媒介
備考 「ひばりヶ丘」駅より徒歩6分、通勤通学に便利な好立地!

2階LDK17.3帖・全居室6帖以上のゆとりあるお住まい

徒歩10分圏内にスーパー・ドラッグストア・コンビニなど買い物しやすい住環境


<充実な設備・仕様>
床暖房・食洗器・浄水器・浴室換気乾燥機・浴室TV・ペアガラスなど設備充実

~ライフインフォメーション~
■一本松児童遊園・・・約264m
■ドラッグセイムス・・・約250m
■セブンイレブン・・・約261m
■オリンピック・・・約300m
■ひばりが丘北郵便局・・・約447m
■ひばりが丘パルコ・・・約570m
■ひばりが丘図書館・・・約614m
■野寺小学校・・・約1200m
■第五中学校・・・約1600m

◎オンライン相談・オンライン見学対応しております!
物件番号 3-63452

物件の種類から探す

駅沿線から物件を探す

市区町村で物件を探す

フリーダイヤル