ひばりヶ丘を中心に、新座市、西東京市、東久留米市の新築一戸建て・不動産購入・売却 マイタウン西武・マイタウンひばりヶ丘

「お客様ファースト」暮らしに笑顔を 住まいに感動を 株式会社マイタウン西武
TEL:0120-612-622 電話受付時間(水曜以外)9:00〜20:00

東久留米市の物件 - 東久留米市浅間町2丁目 「ひばりヶ丘」駅の新築一戸建て | ZEH仕様の省エネ住宅 小屋裏収納 2階リビング

南北西の三方角地!陽当たりと開放感良好・省エネ性の高いZEH仕様の住宅

公園隣接につき四季の移ろいを感じられる緑豊かな住環境

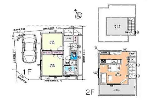
<間取り>

人の目を気にする事無く家族団らんを楽しめる2階LDK

人気の対面キッチン、キッチン越しに会話を楽しみながら、いつものお料理をもっと楽しく

全居室2面採光でお部屋が明るく、便利な全居室収納付きです

固定階段付きの小屋裏収納、季節の家電や思い出の品物なども保管しておけますね

4.5mワイドスパンバルコニー付きで開放的!

※画像をクリック/タップすると大きい画像が開きます。

物件概要

物件名 新築一戸建て住宅 全1棟
販売価格 3499万円(税込)
2/23値下げ

所在地 東久留米市浅間町2丁目
交通 西武池袋線「ひばりヶ丘」駅 徒歩15分/西武池袋線「東久留米」駅 徒歩18分
間取り 2LDK
土地面積 66.47㎡
用途 第一種低層住居専用地域
建物面積 64.26㎡
構造 木造2階建
建ぺい率 40%
容積率 80%
地目 宅地
建築年月日 2026年1月
現状 建築中/相談
設備 都市ガス・公営水道・本下水
土地権利 所有権
取引形態 媒介
備考 南北西の三方角地につき陽当たりと開放感良好

ZEH仕様の省エネ住宅

2階LDK・リビングイン階段・固定階段付き小屋裏収納など

徒歩10分圏内にスーパー・コンビニ・郵便局・公園等


~ライフインフォメーション~
■ヤオコー・・・約526m
■栗原公園・・・約579m
■ローソンストア100・・・約594m
■サンドラック・・・約679m
■栗原郵便局・・・約709m
■大門中学校・・・約793m
■栗原出張所・・・約999m
■第二小学校・・・約1078m

◎オンライン相談・オンライン見学対応しております!

物件番号 3-62794

物件の種類から探す

駅沿線から物件を探す

市区町村で物件を探す

フリーダイヤル