ひばりヶ丘を中心に、新座市、西東京市、東久留米市の新築一戸建て・不動産購入・売却 マイタウン西武・マイタウンひばりヶ丘

「お客様ファースト」暮らしに笑顔を 住まいに感動を 株式会社マイタウン西武
TEL:0120-612-622 電話受付時間(水曜以外)9:00〜20:00

新座市の物件 - 新座市片山3丁目 「大泉学園」駅の中古一戸建て | 全居室6帖以上 浄水器 浴室乾燥機 納戸

R3年3月外壁・屋根塗装済・R7年12月アフターサービス保証付きリフォーム完了予定!

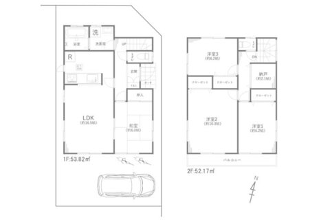
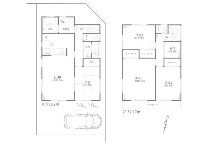
<間取り>

インテリアの映える広々としたLDK約16.5帖。室内明るく、ゆったり快適に過ごせます

人気の対面キッチン、キッチン越しに会話を楽しみながら、いつものお料理をもっと楽しく

全居室2面採光でお部屋が明るく、便利な全居室収納付

リビングの続きにしっとりと落ち着いた雰囲気の和室

浴室乾燥機があるので雨の日のお洗濯でもラクラク乾燥!

浴室乾燥機があるので雨の日のお洗濯でもラクラク乾燥!

※画像をクリック/タップすると大きい画像が開きます。

物件概要

物件名 中古一戸建て住宅
販売価格 3599万円(税込)
2/27値下げ

所在地 新座市片山3丁目
交通 西武池袋線「大泉学園」駅バス10分「大泉第三小学校」徒歩10分/西武池袋線「ひばりヶ丘」駅バス9分「あけぼの住宅」停歩13分
間取り 4LDK
土地面積 106.13㎡
用途 第一種低層住居専用地域
建物面積 105.99㎡
構造 木造2階建
建ぺい率 60%
容積率 100%
地目 宅地
建築年月日 2011年2月
現状 空家/相談
設備 公営・公共下水・都市ガス
土地権利 所有権
取引形態 媒介
備考 旧開発分譲地の角地につき開放感良好

全居室6帖以上、ゆとりある広さの4LDK

徒歩10分圏内にコンビニ、スーパー、公園など周辺環境充実

R3年3月外壁・屋根塗装済
R7年12月アフターサービス保証付きリフォーム完了予定

(内容)キッチン、浴室、洗面室、トイレ交換、フローリング貼替、クロス貼替、ハウスクリーニング他

<充実な設備・仕様>
全居室2面採光+収納完備・浴室乾燥機・浄水器・システムキッチン・納戸など

~ライフインフォメーション~
■久保新田さくら公園・・・約402m
■ベルク・・・約537m
■マーガレット保育園・・・約697m
■ファミリーマート・・・約795m
■ドラッグセイムス・・・約813m
■練馬西大泉三郵便局・・・約933m
■片山小学校・・・約1068m
■第三中学校・・・約1720m

◎オンライン相談・オンライン見学対応しております!
物件番号 3-62643

物件の種類から探す

駅沿線から物件を探す

市区町村で物件を探す

フリーダイヤル