ひばりヶ丘を中心に、新座市、西東京市、東久留米市の新築一戸建て・不動産購入・売却 マイタウン西武・マイタウンひばりヶ丘

「お客様ファースト」暮らしに笑顔を 住まいに感動を 株式会社マイタウン西武
TEL:0120-612-622 電話受付時間(水曜以外)9:00〜20:00

専属専任媒介の物件 - 新座市野寺1丁目 「ひばりが丘」駅の中古一戸建て | カースペース2台可 オール電化

北西角地、南側隣地通路につき陽当たり開放感良好

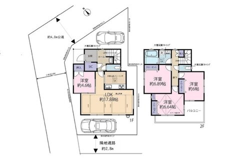
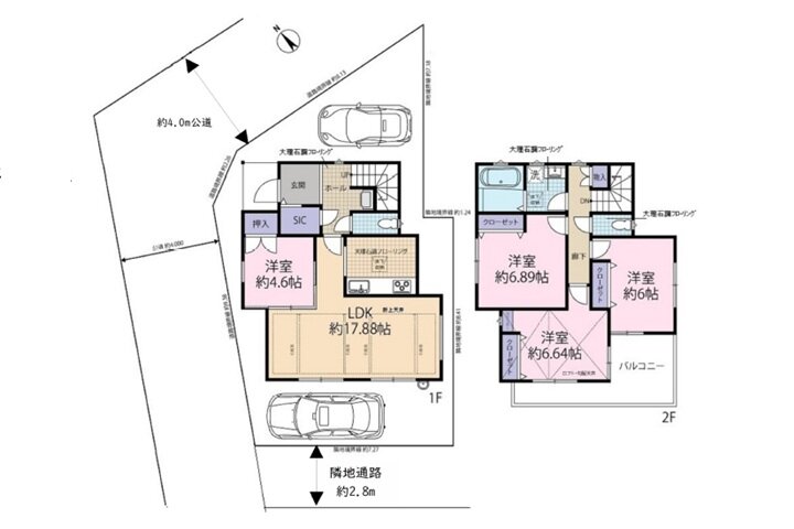
<間取り>

<新築時室内写真>家族が集まるLDKは15帖以上の大空間

<新築時室内写真>お掃除らくらくのIHクッキングヒーター

<新築時室内写真>様々な用途にお使いいただける便利なロフト付き

<新築時室内写真>玄関横にシューズクローク付きで、片付いた玄関がキープできます

<新築時室内写真>洗顔だけでなく、水回りの掃除にも便利なシャワー付き洗面台

<新築時室内写真>広々とした開放感のある玄関でお客様を迎えられます

※画像をクリック/タップすると大きい画像が開きます。

物件概要

物件名 中古一戸建て住宅
販売価格 3380万円
9/19更新
所在地 新座市野寺1丁目
交通 西武池袋線「ひばりが丘」駅 バス4分「火の見下」停歩5分/西武池袋線「ひばりヶ丘」駅徒歩27分
間取り 4LDK
土地面積 104.16㎡
用途 第一種中高層住居専用地域
建物面積 101.44㎡
構造 木造2階建
建ぺい率 60%
容積率 200%
地目 宅地
建築年月日 2018年3月
現状 空室/相談
設備 公営水道・本下水・東京電力
土地権利 所有権
取引形態 専属専任媒介
備考 ~弊社マイタウン西武設計、施工の旧「メモリエ」分譲住宅~

「まもりすまい」新築時保証引継可(弊社での購入のみ対応)

次世代型「ミューダム」で耐震+制震で地震対策 揺れ幅85%低減

地震に強く、優れた透湿性で結露も防ぐ、防腐防蟻性能の耐力面材 

外壁は雨で汚れを洗い落とすセルフクリーニング機能の15mmサイディング


<充実な設備・仕様>
オール電化・IHクッキングヒーター・エコキュート・食洗機・
浄水器・一部大理石調フローリング・玄関耐熱ドア(ピタットキー)・全窓Low-Eガラス 他

~ライフインフォメーション~
野寺公園・・・約150m
■セブンイレブン・・・約350m
八石小学校・・・約230m
明彩幼稚園・・・約400m
横田保育園・・・約400m
栗原一丁目公園・・・約472m
■郵便局・・・約500m
いなげや・・・約550m
ウェルパーク・・・約651m
ファミリーマート・・・約671m
第五中学校・・・約1045m

◎オンライン相談・オンライン見学対応しております!




物件番号 3-61268

物件の種類から探す

駅沿線から物件を探す

市区町村で物件を探す

フリーダイヤル