ひばりヶ丘を中心に、新座市、西東京市、東久留米市の新築一戸建て・不動産購入・売却 マイタウン西武・マイタウンひばりヶ丘

「お客様ファースト」暮らしに笑顔を 住まいに感動を 株式会社マイタウン西武
TEL:0120-612-622 電話受付時間(水曜以外)9:00〜20:00

専任媒介の物件 - 新座市野寺2丁目 「ひばりヶ丘」駅の中古一戸建て| 床暖房 食洗器 浴室乾燥機 ペアガラス

南西側、空地につき陽当り開放感良好

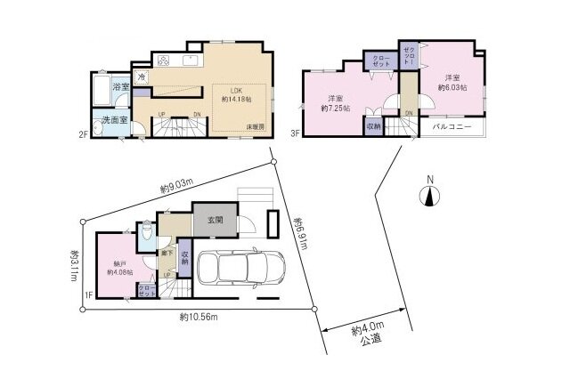
<間取り図>

バス便豊富で通勤・通学に便利な立地

小学校まで至近!毎日の通学も安心です

※画像をクリック/タップすると大きい画像が開きます。

物件概要

物件名 中古一戸建て住宅
販売価格 3380万円
2/8新着

所在地 新座市栗原2丁目
交通 西武池袋線「ひばりヶ丘」駅バス5分「火の見下」停歩4分/東武東上線「朝霞台」駅バス21分「野火止坂上」停歩4分
間取り 2SLDK
土地面積 52.49㎡
用途 第一種中高層住居専用地域
建物面積 80.20㎡
構造 木造3階建て
建ぺい率 60%
容積率 200%
地目 宅地
建築年月日 2022年11月
現状 居住中/相談
設備 公営水道・本下水・東京電力
土地権利 所有権
取引形態 専任媒介
備考 南西側空き地につき陽当たり+開放感良好!

家族の交流が生まれるリビングイン階段を配したLDK

悪天候からお車を守れるビルトインガレージが嬉しいポイント


<充実な設備・仕様>
床暖房・食洗器・浴室換気乾燥機・ペアガラス・玄関ドア電子錠など

~ライフインフォメーション~
■ファミリーマート・・・約170m
■八石小学校・・・約170m
■野寺公園・・・約369m
■いなげや・・・約600m
■第五中学校・・・約600m
■新座石神郵便局・・・約700m
■栗原出張所・・・約820m
■コメリ・・・約850m

◎オンライン相談・オンライン見学対応しております!
物件番号 3-60454

物件の種類から探す

駅沿線から物件を探す

市区町村で物件を探す

フリーダイヤル